Residence MR II- Danish Riviera

The Danish Beach House is positioned directly above the sea on an incredible elevated site. The Main house has been situated as close as possible to the seafront, while also engaging the sun path and wind sheltered land side.



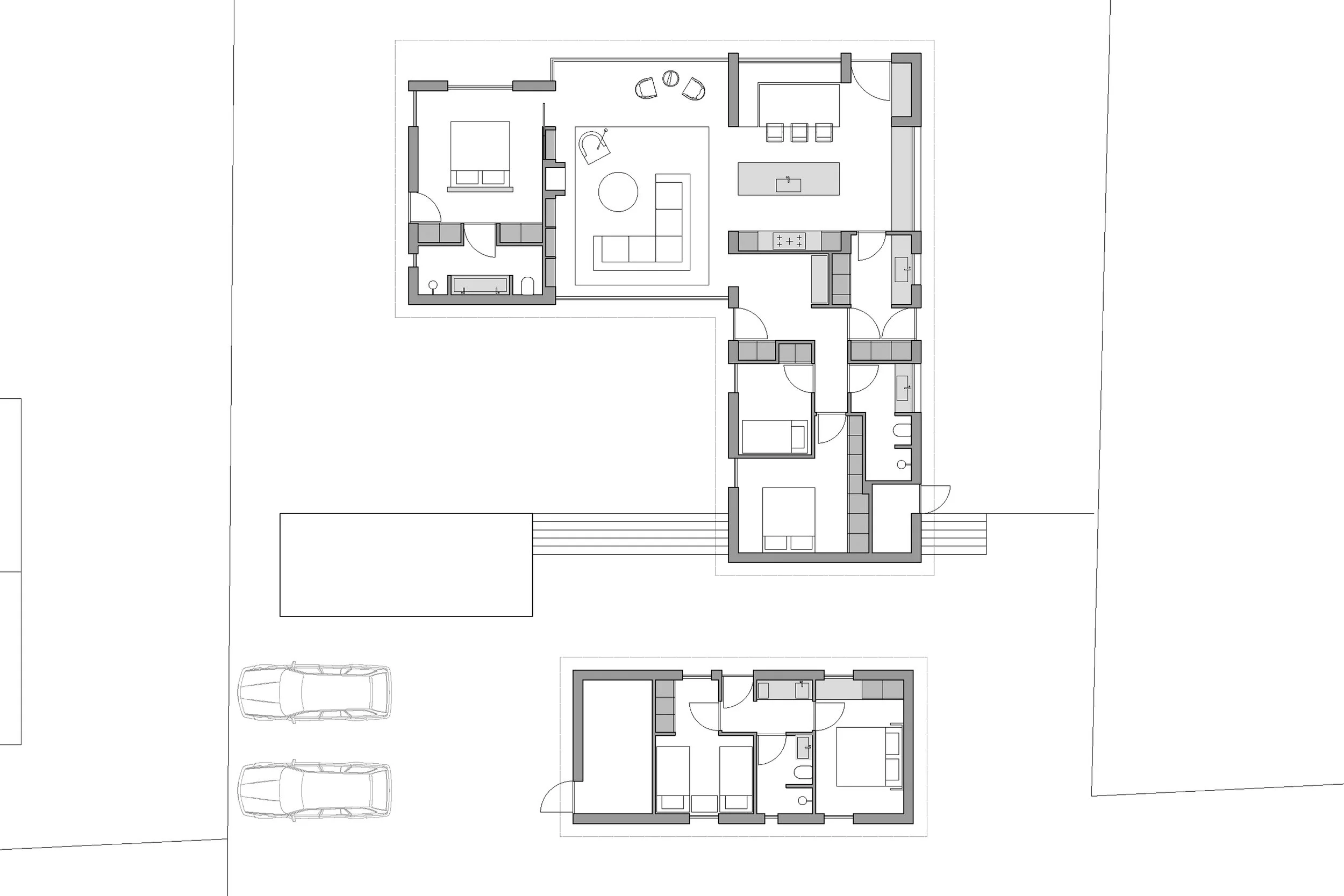
Although a generous family residence, space has been created for cozy bedrooms, built in benches and intimate nooks, in honour of traditional vacation homes. 

High quality, timeless materials and textures have been selected to create a comfortable family home, able withstand harsh marine conditions for generations to come.

Photography by Piet Albert Goethals and Pieter Kleinmann

Next
Next

Apartment CS